伊勢市吹上1丁目
2階(オフィス):駅前/最新リフォーム済み/ワンフロア/神宮近/物販店、塾、美容室、クリニック、オフィス
お問い合わせ番号:8401115
賃料:14.8万円(税込)/月
- 所在地
- 伊勢市吹上1丁目
- 交通
- 近鉄宇治山田駅から約140m、徒歩約2分
伊勢市駅から約450m、徒歩約5分 - 間取り・面積
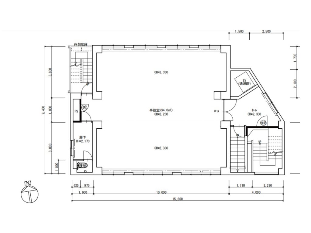
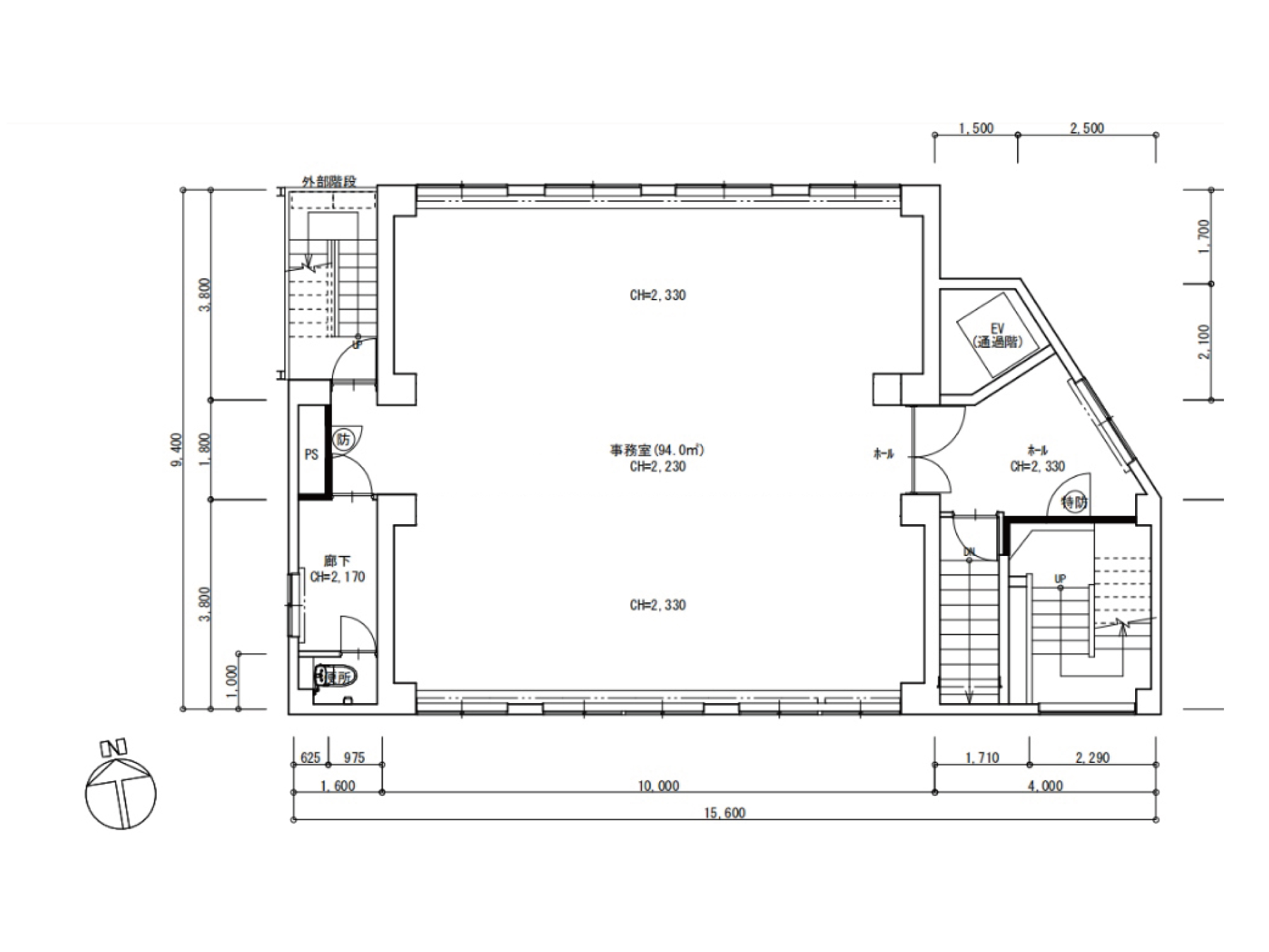
- 建物面積:126.50㎡ 38.26坪
専有面積:109.04㎡ 32.98坪
ホテル FLYCAT INN 伊勢(フライキャットイン伊勢)2階
専用の入口あり。出口2ケ所。塾・事務所・美容室などに最適(飲食不可)
アピールポイント
◆宇治山田駅から徒歩2分、伊勢市駅から徒歩5分◆建物に駅から見える大きな看板設置可能
- 敷金
- 1ヶ月
- 礼金
- 無し
- 賃料
- 14.8万円(税込)/月
- 地目
- 宅地
- 接道状況
- 東南
- 共益費
- 無し
- 駐車場
- なし
- 引渡
- 相談
- 取引態様
- 仲介
- 備考
- 駅前
- ホテル FLYCAT INN 伊勢(フライキャットイン伊勢)2階
- 専用の入口あり
- 出口2ケ所
- 飲食不可
- 最適用途:物販店、塾、美容室、クリニック、オフィスなど
- 建物に駅から見える大きな看板設置可能
- 建築年月
- S49年5月30日
- 構造・間取り
- 鉄骨造 陸屋根 地下1階付8階建 1R
- 建物面積
- 建物面積:126.50㎡ 38.26坪
専有面積:109.04㎡ 32.98坪 - 用途
- 店舗・事務所
- 用途地域
- -
- 所在地
- 伊勢市吹上1丁目10-13
- 交通
- 近鉄宇治山田駅から約140m、徒歩約2分
伊勢市駅から約450m、徒歩約5分 - 電気
- 中部電力
- 水道
- 敷地内引込みあり
- ガス
- なし
- 汚水
- 下水道
- 雨水
- 側溝
- 設備
- -






















